トラス
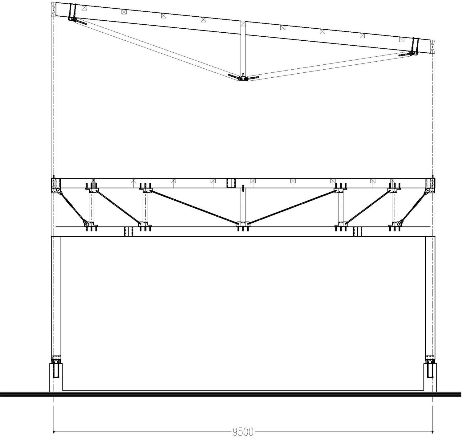
9.5mの床トラスを持つ事務所
1階に大型トラックのウイング車から荷卸しする資材倉庫を必要とする2階建て事務所です。計画上1階で5.4mの階高と9.5mのスパンが必要でした。木造としては構造構造グリットが大きく、かつ1階に大空間が必要な計画を実現するために、床梁として当社が開発コンサルタントを担当した「パクトビーム」を採用し、9.5mの小屋トラスには株式会社タツミ製の「テックワンP3プラス」を採用した建物です。外観を見ると鉄骨造のようなスケールですが、特注の大断面集成材を使うことなく実現できた例です。
- 建物用途:
- 事務所
- 延床面積:
- 256.5㎡
- スパン:
- 9.5m
- 制震要素:
- X・Y方向 ─ 面材耐力壁
- 水平幅面:
- 厚物合板直打ち
- 構造概要:
- 床トラス(上弦材、下弦材 ─ 120×240)