トラス

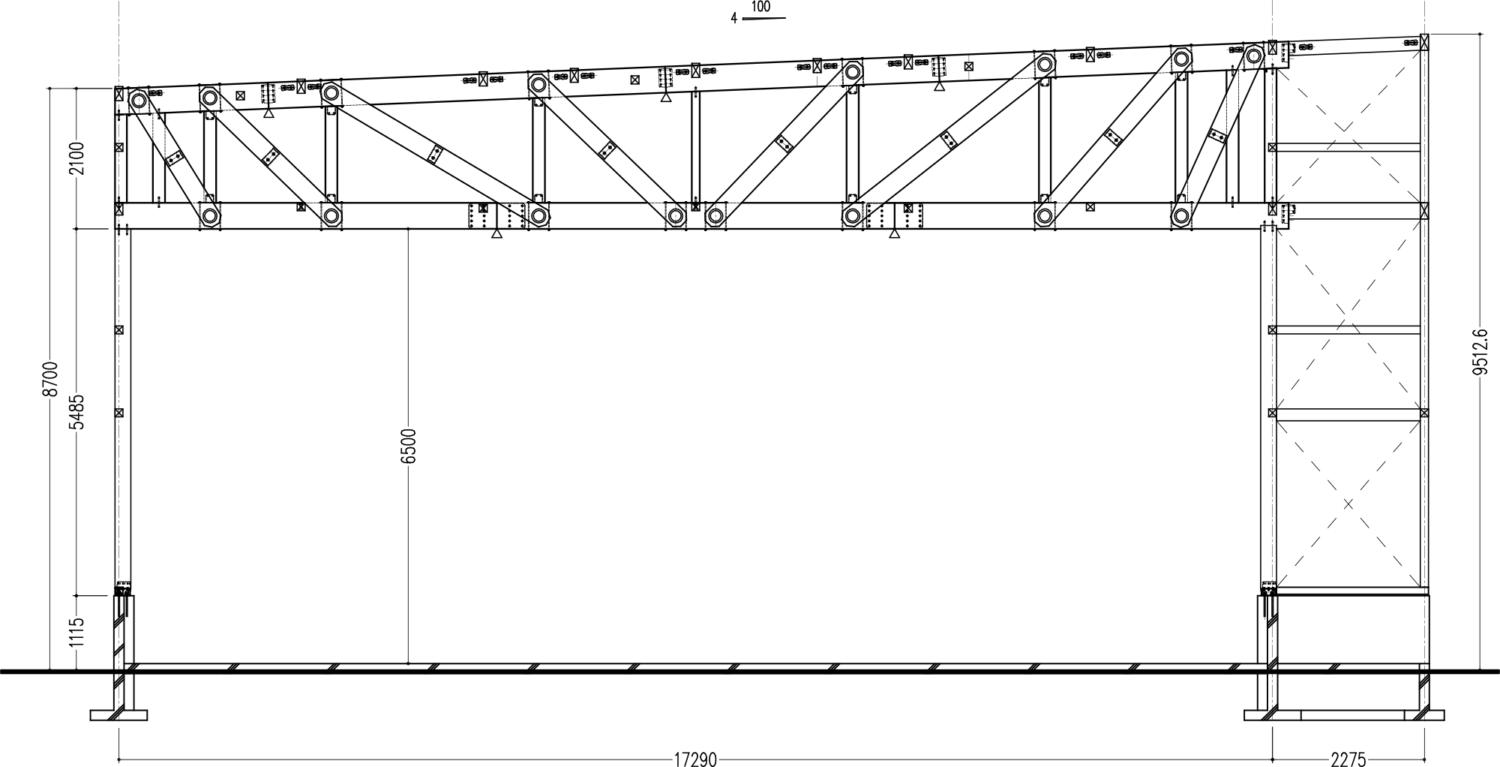
青森に建つ倉庫(スパン17.29m)

設計積雪量1m(多雪地)であることから、高耐力で自由な角度の接合が可能な「MPねじ接合システムType-L」(BXカネシン(株))を活用したトラスを1.82mピッチに配置しました。軽量な建物ですが多雪地のため積雪を考慮した耐震設計が必要であります。また最高高さ9.517mと受圧面積大きいことから張間方向への水平力が大きいため、建物外部に3.64mピッチで在来耐力壁を配置する計画としています。この耐力壁は建物外部の庇下として荷物の仮置き場として活用できる計画です。竣工検査前日の2025年12月8日に「青森東方沖地震」が発生し建設地近傍で震度5強が観測されましたが、内装の石膏ボードにも全く損傷が無く、建物の被害は確認されませんでした。このような大空間の建物においても適切な構造設計を行うことで必要な耐震性能を確保出来る事が実証された建物です。

建物用途:
倉庫
延床面積:
1160.78㎡
制震要素:
桁行方向 ─ 面材耐力壁
梁間方向 ─ 在来耐力壁
水平幅面:
ターンバックルブレースM14
構造概要:
上弦材 ─ 120×390
下弦材 ─ 120×390
柱 ─ 120×240
主要接合金物 ─ テックワン
斜材接合部 ─ MPねじ接合システム type-L
設計・監理:
ファーストウッド(株)東京営業所一級建築士事務所
施工:
株式会社工組(つかさぐみ)
プレカット:
ファーストウッド(株)