自立フレーム
住宅(方杖フレーム)
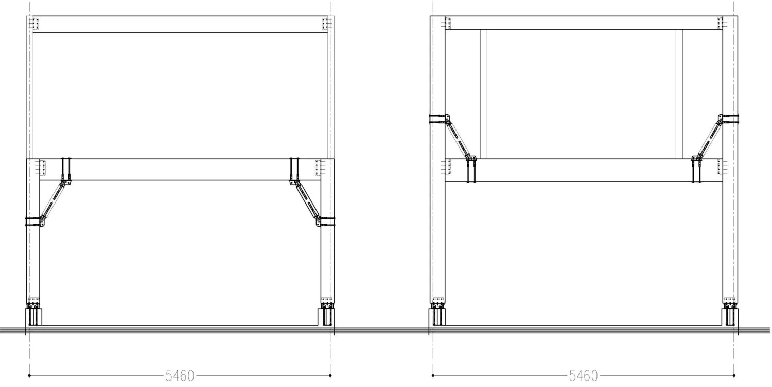
張間方向に耐力壁を配置できないガレージハウスを方杖フレームで計画。シャッターボックスを綺麗に納めるために入り口側の方杖フレームのみフレーム形状を変えて、意匠の要望を実現した例です。
- 建物用途:
- 住宅
- スパン:
- 5.46m
- 制震要素:
- 張間方向 ─ 方杖フレーム
桁行方向 ─ 在来耐力壁 - 水平幅面:
- 2階 ─ 床厚物合板
小屋 ─ 野地 + 垂木 + 火打ち材




自立フレーム
張間方向に耐力壁を配置できないガレージハウスを方杖フレームで計画。シャッターボックスを綺麗に納めるために入り口側の方杖フレームのみフレーム形状を変えて、意匠の要望を実現した例です。